Перейти к содержимому

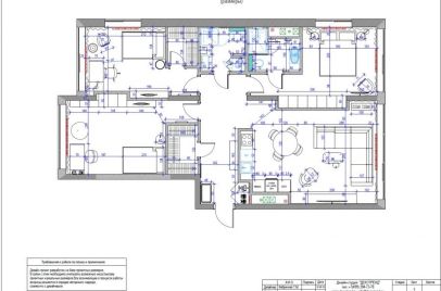
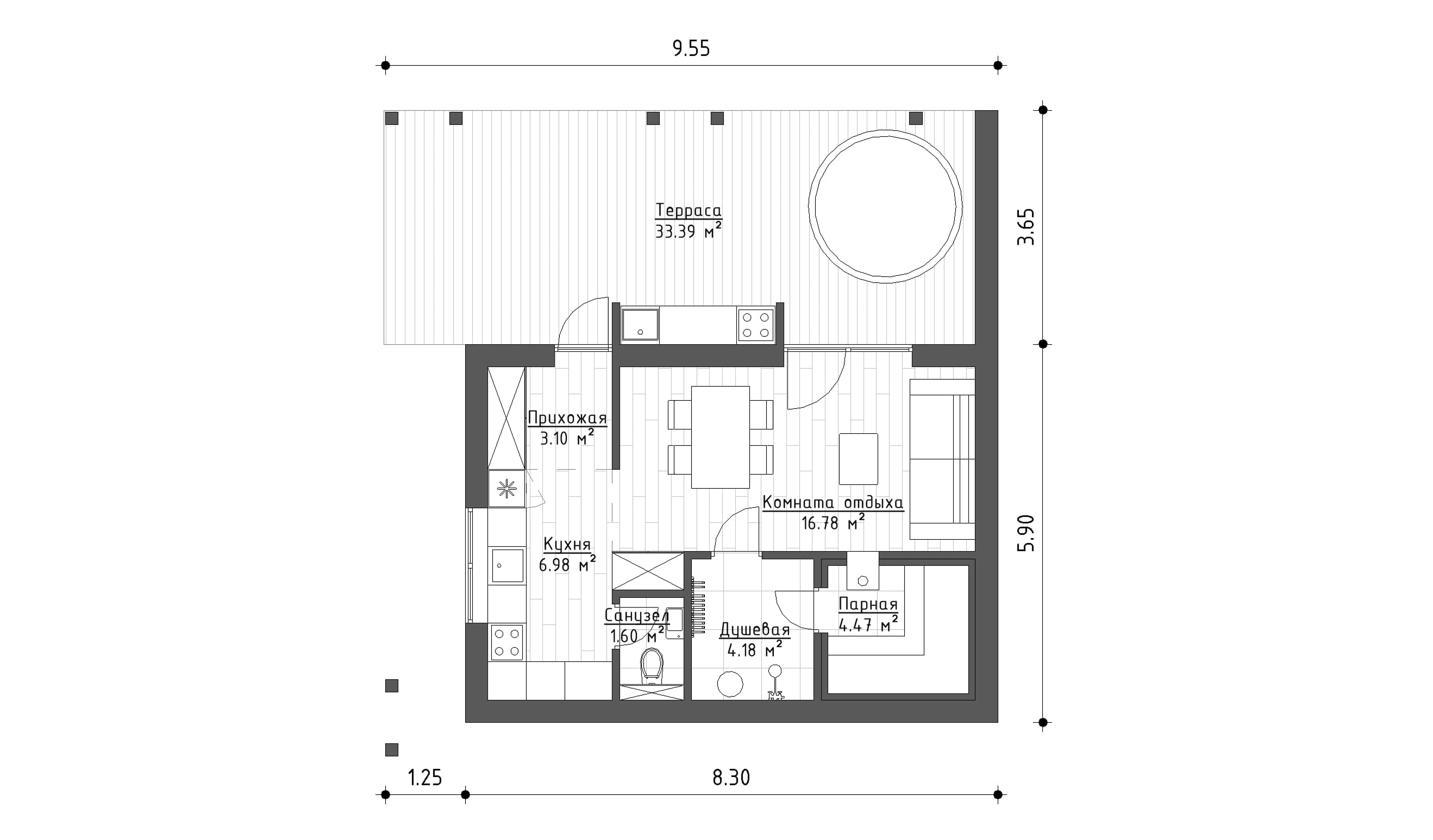
Основные характеристики

  • Просторная терраса

Стоимость проекта:

от 700 BYN

Стоимость строительства:

от 62 308 BYN
Возможна рассрочка
Бесплатная консультация с архитектором
Нажимая на кнопку, вы соглашаетесь с политикой конфиденциальности
  • Общая площадь (с террасами и навесом)
    70,51
  • Площадь общая
    до 80 м²
  • Площадь парной
    3,8
  • Площадь зоны отдыха
    13,6
  • Спальная комната
    Нет
  • Санузел
    Да
  • Общая площадь (с террасами и навесом)
    70,51
  • Площадь общая
    до 80 м²
  • Площадь парной
    3,8
  • Площадь зоны отдыха
    13,6
  • Спальная комната
    Нет
  • Санузел
    Да

Стоимость проектирования

  • Конструктивные решения
    + 1 500 BYN

    Конструктивные решения - раздел строительного проекта, содержащий детальную проработку несущих конструкций 
    с подсчётом спецификации.

    1. Общие данные, технические указания и рекомендации по выполнению строительно-монтажных работ;
    2. Планы и сечения фундаментов, спецификации;
    3. Планы расположения элементов перекрытий. Спецификации;
    4. Планы расположения элементов крыши. План стропил. Спецификации;
    5. Схемы устройства конструктивных элементов, требующих детального изображения (монолитный пояс, монолитные участки);
    6. Чертежи узлов и деталей по всем конструктивным элементам;
    7. Спецификация и сечения перемычек;
    8. Схема утепления фасадов;
    9. 3Д Виды конструктива дома.
    Конструктивные решения
    Конструктивные решения
    Конструктивные решения
  • Генеральный план
    + 600 BYN

    Генеральный план - раздел строительного проекта, содержащий план с точным расположения и привязкой к местности, дорогам, окружающим строениям, существующим коммуникациям, противопожарным разрывам.

    1. Разбивочный план. Ситуационная схема;
    2. Вертикальная планировка;
    3. Схема наружных инженерных сетей.
    Генеральный план
  • Проект инженерных сетей
    + 1 200 BYN

    Инженерные сети - раздел технических решений по внутренней канализации, отоплению, водоснабжению и устройству котельной с подробной спецификацией.

    1. Пояснительная записка. Расчёты теплопотерь
    2. План и схема раскладки труб канализации;
    3. План и схемы системы водоснабжения;
    4. План и схемы системы отопления;
    5. Схемы устройства котельной;
    6. Спецификация изделий и материалов.
    Проект инженерных сетей
    Проект инженерных сетей
    Проект инженерных сетей
  • Типовой дизайн
    + 2 000 BYN

    Типовой дизайн проект дома позволяет  оптимизировать денежные средства, и предусмотреть заранее все функциональные и технические особенности планировки вашего строения.

    Типовой дизайн
  • Индивидуальный дизайн
    + 8 000 BYN

    Концепция будущего интерьера с подробной технической информацией по его реализации, в соответствии с индивидуальными требованиями клиента.

    Индивидуальный дизайн
Итоговая сумма: 0
Итоговая сумма:
0

Обсудить проект с экспертом

Проконсультируем по стоимости, срокам и материалам

Оставьте заявку
Я лично слежу за каждым этапом строительства
Наша компания и я как собственник несем ответственность до конца и даже совершив ошибку — мы исправим её, а потом решаем чья ответственность. Мы сами проектируем и строим дома своими силами. Один ответственный за все!
Беликов Алексей
Основатель и собственник строительной компании ООО «Беликов Монолит»
Не нашли подходящий проект?
Наши архитекторы разработают
индивидуальный проект!
На этапе согласования проекта работаем до состояния
«мне нечего добавить» у собственника и у архитектора
Проект дома по индивидуальному проекту
Проект дома по индивидуальному проекту
Проект дома по индивидуальному проекту
Проект дома по индивидуальному проекту
Проект дома по индивидуальному проекту
Проект дома по индивидуальному проекту
Проект дома по индивидуальному проекту
Проект дома по индивидуальному проекту
Проект дома по индивидуальному проекту
Проект дома по индивидуальному проекту
Проект дома по индивидуальному проекту
Проект дома по индивидуальному проекту