Перейти к содержимому

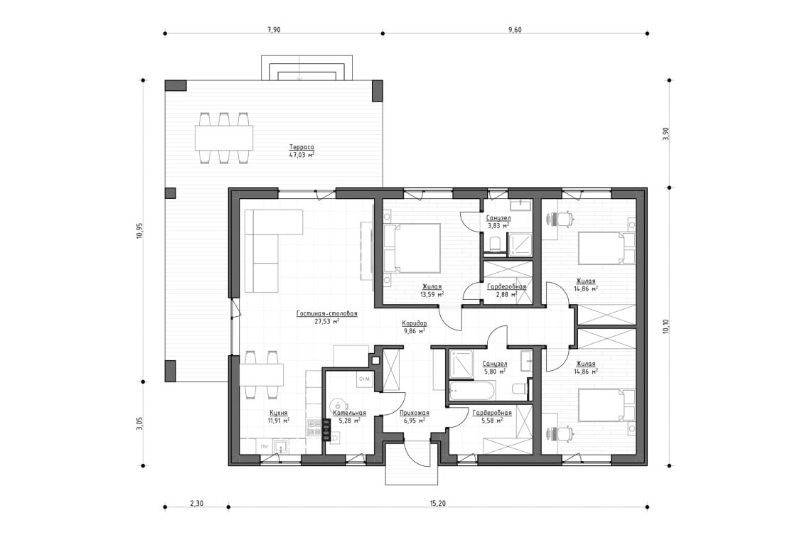
Лазурит 101 м²

3 спальни
3 санузла
Терраса

Лазурит 101 м²

3 спальни
3 санузла
Терраса

Основные характеристики

  • Гостиная с открытой кухней
  • Мастер-спальня с гардеробной
  • Две дополнительные спальни
  • Отдельный кабинет
  • Кладовая рядом с кухней
  • Две ванные комнаты

Стоимость проекта:

от 900 BYN

Стоимость строительства:

от 156 829 BYN
Возможна рассрочка
Описание дома

Дом разделен на две функциональные зоны: с левой стороны от входа находится просторная кухня-гостиная с выходом на террасу, справа - спальни, в которых предусмотрены места для работы и учебы, а также встроенные шкафы для хранения вещей.

В доме располагается сауна, несколько санузлов и котельная с достаточной площадью для расположения всего необходимого оборудования.

Просторная кухня-гостиная с возможностью предусмотреть камин и крытая терраса позволит провести множество прекрасных вечеров в компании близких вам людей.

Дом исполнен в трех площадях: 100,07 м2, 121,40 м2 и 141,93 м2.

Бесплатная консультация с архитектором
Нажимая на кнопку, вы соглашаетесь с политикой конфиденциальности
  • Количество этажей
    1 этаж
  • Общая площадь (с террасами и навесом)
    118,67
  • Площадь с учётом террас и крылец
    106,47
  • Тип участка
    Широкий
  • Количество спален
    3
  • Количество сан узлов
    3
  • Тип кровли
    Скатная
  • Наличие сауны
    Да
  • Навес для авто
    Нет
  • Терраса
    Да
  • Количество этажей
    1 этаж
  • Общая площадь (с террасами и навесом)
    118,67
  • Площадь с учётом террас и крылец
    106,47
  • Тип участка
    Широкий
  • Количество спален
    3
  • Количество сан узлов
    3
  • Тип кровли
    Скатная
  • Наличие сауны
    Да
  • Навес для авто
    Нет
  • Терраса
    Да
Стоимость строительства
Этапы

Проектирование — бесплатно при покупке любой стадии строительства

1. Закрытый контур — фундамент

  • Геодезическая разбивка
  • Земляные работы
  • Свайно-ростверковый фундамент
  • Монтаж коммуникаций
  • Черновой пол
  • Несущие стены КББлок 300 мм
  • Внутренние стены КББлок 120 мм
  • Вентиляционные каналы КББлока
  • Монолитные перемычки и пояса
  • Обработка пиломатериала биозащитными составами
  • Кровля с покрытием металлочерепицы «Топ Дах» матовой 0,5мм
  • Водосточная система «AquaSystem Comfort»
Этапы

Проектирование — бесплатно при покупке любой стадии строительства

1. Закрытый контур

2. Теплый закрытый контур

  • Свето-прозрачные конструкции:
    - Профиль Kommerling 76мм
    - Остекление: 4СИ-20-4М1-18И4: Стеклопакет 50мм + мультистекло + энерго
    - Тонировка: Мультистекло LARTA HOME-Salar Neitral – АНТИЖАРА
    - Фурнитура: Roto NX
    - Окно на террасе системы PremiDoor KBE
  • Монтаж входной двери
  • Электромонтажные работы
  • Внутренние штукатурные работы
  • Утепление перекрытия и кровли второго света 250мм
  • Устройство фасадной отделки с утеплением 100мм декоративной штукатуркой
  • Устройство карнизного свеса с подшивкой металлическими софитами «Docke»
  • Монтаж труб водост очной системы «AquaSystem Comfort»
  • Прокладка канализации, водоснабжения, обустройство системы отопления теплыми полами
  • Обустройство котельной
  • Чистовая стяжка пола
  • Отмостка без финишного покрытия
Этапы

Проектирование — бесплатно при покупке любой стадии строительства

1. Закрытый контур — фундамент

2. Теплый закрытый контур

3. Чистовая отделка внутри и снаружи

Индивидуальный
расчет
3 месяца

Фундамент, черновая стяжка, стены, кровля.

Показать этапы строительства

Проектирование — бесплатно при покупке любой стадии строительства

1. Закрытый контур — фундамент

  • Геодезическая разбивка
  • Земляные работы
  • Свайно-ростверковый фундамент
  • Монтаж коммуникаций
  • Черновой пол
  • Несущие стены КББлок 300 мм
  • Внутренние стены КББлок 120 мм
  • Вентиляционные каналы КББлока
  • Монолитные перемычки и пояса
  • Обработка пиломатериала биозащитными составами
  • Кровля с покрытием металлочерепицы «Топ Дах» матовой 0,5мм
  • Водосточная система «AquaSystem Comfort»
7 месяцев

Дом утеплён, оштукатурены стены. Разведена черновая электрика, отопление, водоснабжение, канализация.

Показать этапы строительства

Проектирование — бесплатно при покупке любой стадии строительства

1. Закрытый контур

2. Теплый закрытый контур

  • Свето-прозрачные конструкции:
    - Профиль Kommerling 76мм
    - Остекление: 4СИ-20-4М1-18И4: Стеклопакет 50мм + мультистекло + энерго
    - Тонировка: Мультистекло LARTA HOME-Salar Neitral – АНТИЖАРА
    - Фурнитура: Roto NX
    - Окно на террасе системы PremiDoor KBE
  • Монтаж входной двери
  • Электромонтажные работы
  • Внутренние штукатурные работы
  • Утепление перекрытия и кровли второго света 250мм
  • Устройство фасадной отделки с утеплением 100мм декоративной штукатуркой
  • Устройство карнизного свеса с подшивкой металлическими софитами «Docke»
  • Монтаж труб водост очной системы «AquaSystem Comfort»
  • Прокладка канализации, водоснабжения, обустройство системы отопления теплыми полами
  • Обустройство котельной
  • Чистовая стяжка пола
  • Отмостка без финишного покрытия
12 месяцев

Дом полностью готов к проживанию.
Индивидуальный расчет после согласования дизайна интерьера

Показать этапы строительства

Проектирование — бесплатно при покупке любой стадии строительства

1. Закрытый контур — фундамент

2. Теплый закрытый контур

3. Чистовая отделка внутри и снаружи

Индивидуальный расчет

Стоимость проектирования

  • Архитектурный проект
    900 BYN
    Архитектурный проект - раздел строительной документации, содержащий информацию о объёмно-планировочном решении Вашего будущего дома.
    1.Общие данные, технико-экономические показатели, пояснительная записка;
    2.Поэтажные планы с экспликацией помещений (мебели, кладочные, маркировочные);
    3.Разрезы (поперечный и продольный) с составом ограждающих конструкций
    4.План кровли;
    5.Фасады в осях с цветовым решением фасадов;
    6.Экспликация полов. Ведомость заполнения проёмов;
    7.3Д виды.
    Лазурит 101 м²
  • Конструктивные решения
    + 1 500 BYN

    Конструктивные решения - раздел строительного проекта, содержащий детальную проработку несущих конструкций 
    с подсчётом спецификации.

    1. Общие данные, технические указания и рекомендации по выполнению строительно-монтажных работ;
    2. Планы и сечения фундаментов, спецификации;
    3. Планы расположения элементов перекрытий. Спецификации;
    4. Планы расположения элементов крыши. План стропил. Спецификации;
    5. Схемы устройства конструктивных элементов, требующих детального изображения (монолитный пояс, монолитные участки);
    6. Чертежи узлов и деталей по всем конструктивным элементам;
    7. Спецификация и сечения перемычек;
    8. Схема утепления фасадов;
    9. 3Д Виды конструктива дома.
    Конструктивные решения
    Конструктивные решения
    Конструктивные решения
  • Генеральный план
    + 600 BYN

    Генеральный план - раздел строительного проекта, содержащий план с точным расположения и привязкой к местности, дорогам, окружающим строениям, существующим коммуникациям, противопожарным разрывам.

    1. Разбивочный план. Ситуационная схема;
    2. Вертикальная планировка;
    3. Схема наружных инженерных сетей.
    Генеральный план
  • Проект инженерных сетей
    + 1 200 BYN

    Инженерные сети - раздел технических решений по внутренней канализации, отоплению, водоснабжению и устройству котельной с подробной спецификацией.

    1. Пояснительная записка. Расчёты теплопотерь
    2. План и схема раскладки труб канализации;
    3. План и схемы системы водоснабжения;
    4. План и схемы системы отопления;
    5. Схемы устройства котельной;
    6. Спецификация изделий и материалов.
    Проект инженерных сетей
    Проект инженерных сетей
    Проект инженерных сетей
  • Принудительная вентиляция с рекуперацией и кондиционирование
    + 1 000 BYN

    Это система, которая работает за счёт приточно-вытяжной установки, состоящей из вентиляторов, фильтров и теплообменника. С помощью воздуховодов такая установка подаёт свежий воздух в одни помещения и выкачивает отработанный из других.

    1.Таблица воздушных балансов (расчёт) для вентиляции и кондиционирования;
    2.План и аксонометрическая схема системы вентиляции;
    3.Аксонометрическая схема системы Вентиляции;
    4.Узлы вент-коллекторов и вентустановки;
    5.План и аксонометрическая схема система кондиционирования
    6.Схемы монтажа вентустановки и кондиционирования;
    7.Спецификация изделий и материалов.

    Принудительная вентиляция с рекуперацией и кондиционирование
    Принудительная вентиляция с рекуперацией и кондиционирование
    Принудительная вентиляция с рекуперацией и кондиционирование
  • Геологические изыскания (Геология)
    + 800 BYN

    Изучение природных условий и особенностей грунта на участке, где планируется строительство. 

    Это поможет избежать ошибок в проектировании дома и предотвратить такие проблемы, как трещины в фасаде или деформации строения. Геологические изыскания также позволяют определить тип грунта, что влияет на выбор фундамента и его стоимость. Без проведения геологических изысканий есть риск возникновения опасных ситуаций, таких как обрушение здания из-за оползней или возникновение плесневых грибков.

    Геологические изыскания (Геология)
    Геологические изыскания (Геология)
  • Геодезические изыскания (Топосъёмка)
    + 600 BYN

    Это комплекс геодезических работ, направленных на детальное изучение территории (создание точного плана местности, отображающий рельеф, инфраструктуру, подземные коммуникации и иные элементы). 

    Этот процесс включает как полевые исследования, так и камеральную обработку данных, результатом которой становится инженерно-топографический план.

    Геодезические изыскания (Топосъёмка)
    Геодезические изыскания (Топосъёмка)
  • Технический дизайн проект
    + 5 000 BYN

    Технический дизайн проект - это комплект чертежей, который решает задачи по оптимизации пространства, обеспечению комфорта и безопасности. Данный раздел включает в себя проектирование, расчёты и подбор материалов с учётом функциональности, эргономики и технических требований.

    1.Схема расстановки мебели
    2.Схема водоснабжения
    3.Схема потолков
    4.Схема освещения. Схема освещения в группах
    5.Схема электрики
    6.Схема расположения кондиционеров
    7.Развёртки стен
    8.Схемы монтажа. Деталировочные виды

    Технический дизайн проект
    Технический дизайн проект
    Технический дизайн проект
Итоговая сумма: 0
Итоговая сумма:
0

Обсудить проект с экспертом

Проконсультируем по стоимости, срокам и материалам

Оставьте заявку
Я лично слежу за каждым этапом строительства
Наша компания и я как собственник несем ответственность до конца и даже совершив ошибку — мы исправим её, а потом решаем чья ответственность. Мы сами проектируем и строим дома своими силами. Один ответственный за все!
Беликов Алексей
Основатель и собственник строительной компании ООО «Беликов Монолит»
Не нашли подходящий проект?
Наши архитекторы разработают
индивидуальный проект!
На этапе согласования проекта работаем до состояния
«мне нечего добавить» у собственника и у архитектора
Проект дома по индивидуальному проекту
Проект дома по индивидуальному проекту
Проект дома по индивидуальному проекту
Проект дома по индивидуальному проекту
Проект дома по индивидуальному проекту
Проект дома по индивидуальному проекту
Проект дома по индивидуальному проекту
Проект дома по индивидуальному проекту
Проект дома по индивидуальному проекту
Проект дома по индивидуальному проекту
Проект дома по индивидуальному проекту
Проект дома по индивидуальному проекту